- Rathaus & Politik
- Unsere Stadt
- Kultur & Tourismus
- Wirtschaft
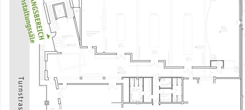
Veranstaltungssäle
Veranstaltungssäle
Alle Räume verfügen über eine auf den Raum abgestimmte Beleuchtung und Beschallung. Die Basis für die Beschallung bildet ein Lautsprechercontroller inkl. DSP Modulen mit 1 HE sowie 8 analogen Ein- und Ausgängen, AES/EBU, Ethernet, 48 KHz, GPIO’s (Xilica Neutrino A0808-D).
Detaillierte Auflistung der technischen Ausstattung in den jeweiligen Räumen
Bühne
Beleuchtung
- 4 x RGBW-LED-Fluter asymmetrisch, 120W (Philips Selecon PLCYC1MKII)
- 2 x 2 Leistungsstarker LED Theaterscheinwerfer mit 100W LED Leistung (Briteq BT-Theater Spot 100EC MK2) (Farbwechsel)
- 10 Deckenstrahler (Zonenausleuchtung)
Tagungstechnik
- Deckenbeamer mit Fernbedienung (Fa. NEC)
- 1 Leinwand 3 m x 4 m (im Bereich Bühne fest installiert )
- Beleuchtungsanlage
Weitere Ausstattung
- Künstlergarderobe mit Sanitäreinrichtungen
- Zugang zu "Hinter den Kulissen/Farbkasten"
Goldberg
Beleuchtung
- 8 x Leistungsstarker LED Theaterscheinwerfer mit 100W LED Leistung (Briteq BT-Theater Spot 100EC MK2)
Beschallung
- 2 x 2-Wege Fullrangelautsprecher (KS Audio CPD 12) (Saal III) 1 x Subwoofer 4x10” (KS Audio CPD SUB)
Höllenpfad
Beschallung
- 2 x Aktiver 2-Weg Compact-Monitor (KS Audio CPD 1M, 10”/1”)
Honigsack
Beschallung
- 2 x Aktiver 2-Weg Compact-Monitor (KS Audio CPD 1M, 10”/1”)
Foyer
Weitere Aussattungsmerkmale
- Gong
- Beschallung zuschaltbar zu den Veranstaltungssälen I-III
- Empfangstheke
- Garderobe
- Toiletten
Bestuhlungsformen
- Bankett
- Konferenz (U-/O-Form)
- Konzertbestuhlung (gerade/versetzt)
- Lange Tafel
- Parlamentarisch/Seminarbestuhlung
- Reihenbestuhlung
- Stuhlkreis
Sie wünschen eine indivuelle Bestuhlung? Sprechen Sie uns an.

Cocimano Melanie